Gelistet in Häuser und Villen in Verkauf
Son Serra de Marina / Mallorcas NordenHaus zu kaufen in Son Serra de Marina, strandnah mit ETV Lizenz: dieses charmante Haus befindet sich nur 10m Strand entfernt, an einer der schönsten Küsten Mallorcas und bietet eine hervorragende Gelegenheit für Investoren oder Familien, die ein Ferienhaus suchen.
Mit einer gültigen Ferienvermietungslizenz (ETV) für bis zu 8 Personen ist es ideal für die Vermietung oder als persönliches Urlaubsdomizil. Bei einer Vermietung von 7 Monaten wurden ca. 80.000EUR Mieteinnahmen pro Jahr erzielt.
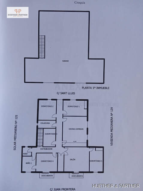
Das Haus verfügt über zwei geräumige Wohnzimmer mit offener Küchenzeile, die eine einladende Atmosphäre schaffen und ideal für gesellige Abende sind. Schlafzimmer. Insgesamt gibt es 5 Schlafzimmer, die ausreichend Platz für Familie und Gäste bieten. Zwei Badezimmer, eines mit Badewanne und das andere mit Dusche, sorgen für zusätzlichen Komfort. Weiter gibt es noch ein WC und Dusche im Hinterhof. Der Außenbereich bietet mehrere Terrassen und im Hinterhof ist viel Platz zum Entspannen und Genießen der mediterranen Sonne. Das Grundstück ist ringsherum begehbar, was zusätzliche Flexibilität und Privatsphäre bietet. Erweiterungsmöglichkeiten: Das Dachgeschoss kann noch ausgebaut werden, um zusätzlichen Wohnraum zu schaffen. Zudem bietet die Garage im Erdgeschoss Potenzial für eine Umgestaltung oder Erweiterung.
Eine Zisterne mit einem Fassungsvermögen von 20.000 Litern kann genutzt werden um auch das Regenwasser sammeln zu können.
Dieses Haus kombiniert eine erstklassige Lage mit vielseitigen Nutzungsmöglichkeiten und ist eine hervorragende Investition in die Zukunft. Lassen Sie sich diese Gelegenheit nicht entgehen!
Die Lage dieses Immobilienobjektes
Son Serra de Marina liegt an der Nordostküste Mallorcas und ist ein ruhiges Küstendorf, das für seine unberührte Natur und entspannte Atmosphäre bekannt ist. Der lange, feinsandige Strand lädt zum Schwimmen, Sonnenbaden und Windsurfen ein, während die umliegenden Dünen und Pinienwälder zu Spaziergängen und Erkundungen einladen. Im Dorf selbst gibt es kleine Restaurants, Cafés und Läden, die den Alltag der Einheimischen widerspiegeln. Wer hier lebt, findet Ruhe, Natur und ein authentisches mallorquinisches Lebensgefühl, abseits von überfüllten Touristenzentren. Die Umgebung bietet viele Möglichkeiten für Outdoor-Aktivitäten wie Wandern oder Radfahren und liegt in der Nähe des Naturparks Albufera sowie weiterer Buchten.
Ein Haus zu kaufen in Son Serra de Marina bedeutet, Natur, Strand und Alltagstauglichkeit harmonisch zu verbinden. Familien und Naturliebhaber schätzen die Kombination aus Ruhe, mediterranem Flair und guter Erreichbarkeit der Ostküste.
Die Ausstattung dieses Objektes
- ca. 80.000EUR/Jahr Mieteinnahmen (7 Monate ausgebucht)
- Neue Fenster PVC Doppeltverglast
- 1 Klimaanlage
- 1 Zisterne 20.000 Liter
- 2 Wohnzimmer mit offener Küche
- Dachgeschoss noch ausbaufähig
- EG – Bereich als Garage und Lager nutzbar, aber auch zu weiterem Wohnraum ausbaufähig.
Sonstige Infos zum Immobilien-Objekt
- IBI 839, 00 € / jährlich
- Mühlgebühren ca. 170, 00 € / jährlich
- ETV Lizenz 465, 00 € / jährlich
Besichtigungen bitte rechtzeitig anmelden da das Haus bis zu 180 Tagen ausgebucht ist.
2, 011 Gesamtansichten, 8 Ansichten heute
Für die hier gemachten Angaben ist ausschließlich der Makler / Anbieter verantwortlich. Bei Fragen zu diesem Objekt wenden Sie sich bitte ausschließlich an den Makler und nicht an uns.
Änderungen und Irrtümer vorbehalten. mallorcabsolut.com übernimmt keine Gewähr für die hier gemachten Angaben.
Nicht die richtige Immobilie? Vielleicht passt ja folgendes besser:
112m² Reiheneckhaus mit 4 Zimmern und 2 Bädern zu kaufen
Reiheneckhaus mit Terrasse und 3 Schlafzimmern in Cala Domingo
Wohn- und Geschäftshaus (1 Wohnung und 2 Lokale) zu kaufen
Immobilie für Investoren. Attraktives Wohn- und Geschäftshaus in Palma
Natursteinhaus mit 4 Zimmern, 2 Bädern und Garten zu kaufen
Winteraktion: Historisches Steinhaus in Bunyola, 125m², 3 SZ, 2 Bäder, Gäste-Suite, Garten, Terrasse






























