Plano zu kaufen in Cala Millor mit Meerblick: Top modernisierte Wohnung mit Meeresblick in Strandnähe.
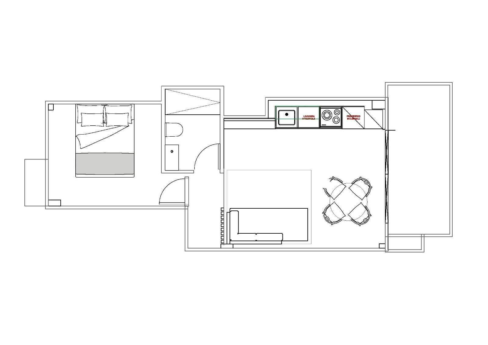
Diese charmante, komplett renovierte Eigentumswohnung befindet sich im dritten Stock eines gepflegten Wohnhauses, nur wenige Schritte vom Strand entfernt. Die ideale Lage im beliebten Badeort Cala Millor bietet Ihnen nicht nur unmittelbare Strandnähe, sondern auch zahlreiche Restaurants, Cafés und Einkaufsmöglichkeiten in fußläufiger Umgebung.
Die lichtdurchflutete Wohnung besticht durch ihre warme, einladende Atmosphäre und einen herrlichen Blick auf das Mittelmeer. Der offene Wohn- und Essbereich lädt zum Entspannen ein, während der Balkon mit Meerblick perfekt ist, um den Tag bei einem Glas Wein ausklingen zu lassen. Dank der hochwertigen Renovierung präsentiert sich die Wohnung in modernem Design und ist sofort bezugsfertig – ideal sowohl als Ferienwohnung als auch als Investitionsobjekt.
La ubicación de esta propiedad
Cala Millor liegt an der Ostküste Mallorcas, direkt an der Bucht von Son Servera. Wer hier eine Eigentumswohnung kaufen möchte, wohnt in einem gut angebundenen und lebendigen Teil der Insel. Der Ort gehört zu den Gemeinden Son Servera und Sant Llorenç des Cardassar und ist in etwa einer Stunde von Palma aus erreichbar.
Im Norden grenzt Cala Bona an, im Süden Sa Coma – beide Orte sind bequem zu Fuß oder mit dem Fahrrad erreichbar. Die Umgebung ist gut erschlossen, mit Straßen, Radwegen und einer Vielzahl an Einkaufsmöglichkeiten. Trotz der guten Anbindung bleibt das Wohngefühl entspannt: viele Bereiche liegen ruhig und bieten einen schönen Blick über die Bucht.
Die Mischung aus Meer, Infrastruktur und Nachbarschaft macht Cala Millor zu einem Ort, an dem sich Alltag und Freizeit angenehm verbinden lassen – praktisch, lebendig und trotzdem gelassen.
El equipamiento de esta propiedad
- Aire acondicionado
- Cocina amueblada
Otra información sobre el inmueble
Todos los detalles se basan en la información y los datos proporcionados a nosotros por el vendedor / cliente. Mallorca Topimmobilien no garantiza la integridad, exactitud y actualidad de la información o la legalidad de la propiedad. El precio de compra indicado no incluye gastos adicionales a cargo del comprador como impuestos, gastos de notaría, registro de la propiedad y gestoría.
729 vistas totales, 1 opiniones hoy
El agente inmobiliario es el único responsable de la información aquí facilitada. Si tiene alguna pregunta sobre esta propiedad, póngase en contacto únicamente con el agente inmobiliario y no con nosotros.
Salvo cambios y errores. mallorcabsolut.com no asume ninguna responsabilidad por la información aquí facilitada.
¿No es el inmueble adecuado? Tal vez el siguiente encaje mejor:
93m² Wohnung in Palma mit 5 Zimmern, Bad & Balkon zu kaufen
Elegant Wohnen über den Dächern – Stilvolle Stadtwohnung mit großzügigem Raumangebot
Ático con 2 dormitorios, 2 baños, vistas al mar y piscina en venta
Ático de lujo con vistas al mar y azotea
Piso de 76m² con 2 dormitorios, 2 baños, terraza y piscina en venta
Diseño armonioso y ligereza mediterránea



















